SUVILAHTI, 4H+K+PARV., 83 m²
Pärnunkatu 6 C 16
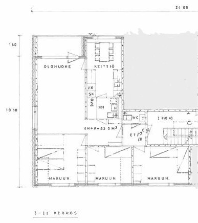
Pian vapautumassa tilava ja valoisa neljän huoneen päätyasunto pienkerrostalon ylimmässä eli toisessa kerroksessa. Tässä viihtyisässä kodissa on 83 m² hyvin suunniteltua asuintilaa. Asunnossa on kolme makuuhuonetta, joten se sopii erinomaisesti perheelle tai tilaa arvostavalle. Erillinen keittiö tarjoaa rauhaa ruoanlaittoon, mutta on luontevasti yhteydessä olohuoneeseen ruokailutilan kautta, mikä tekee kokonaisuudesta toimivan ja avaran. Länteen avautuva parveke kutsuu nauttimaan ilta-auringosta, ja näkymät ovat miellyttävän avarat taloyhtiön pihan suuntaan. Arjen sujuvuutta lisäävät samassa talossa sijaitsevat taloyhtiön saunaosasto, pesutupa sekä varastotilat, mukaan lukien kylmäkellari. Taloyhtiössä on lisäksi hiljattain toteutettu käyttövesisaneeraus, mikä tuo huolettomuutta tuleville vuosille. Etu-Suvilahden sijainti on erityisen ihanteellinen lapsiperheille: päiväkoti sijaitsee aivan vieressä, koulu on kävelymatkan päässä ja alueelta löytyy myös englanninkielinen leikkikoulu. Lähikauppa palvelee vain noin 250 metrin etäisyydellä. Alue tarjoaa lisäksi upeat ulkoilumahdollisuudet meren rannalla sekä monipuoliset liikuntapaikat aivan lähietäisyydellä. Uusia kuvia tulossa 1.4. *********************************** Snart ledig ljus och rymlig fyrarummare i gavelläge på översta (andra) våningen i ett trivsamt mindre höghus. Bostaden erbjuder 83 m² välplanerade kvadratmeter med tre sovrum, vilket gör den perfekt för familjen eller för dig som vill ha extra utrymme. Det separata köket ger lugn för matlagning men har en naturlig kontakt med vardagsrummet via matplatsen, vilket skapar en öppen och social helhet. Balkongen vetter mot väster och bjuder på härlig kvällssol samt öppna och trivsamma vyer mot bolagets gård. I samma byggnad finns husbolagets bastuavdelning, tvättstuga samt praktiska förvaringsutrymmen, inklusive matkällare. Husbolaget har dessutom nyligen genomgått en sanering av bruksvattenledningarna, vilket ger extra trygghet inför framtiden. Läget i Främre-Sunnanvik är särskilt attraktivt för barnfamiljer – daghem finns precis intill, skola på bekvämt avstånd och även en engelskspråkig lekskola i närheten. Närbutiken ligger endast cirka 250 meter bort. Området erbjuder dessutom fina möjligheter till friluftsliv vid havet samt ett brett utbud av motions- och fritidsaktiviteter i närheten. Nya bilder på kommande 1.4.
Katso kaikki kuvat
kerrostalo, 4H+K+PARV., 83 m²
SUVILAHTI, Pärnunkatu 6 C 16, 65100 Vaasa
Velaton hinta: 89 000,00 €
Huoneisto
| Osakkeet: | 893-975 |
| Hallintamuoto: | asunto-osakeyhtiö |
| Huoneluku: | 4H+K+PARV. |
| Kerros/Kerroksia: | 2/2 |
| Asuintilojen pinta-ala: | 83 m² |
| Parveke: | lasitettu. Suunta: länsi |
| Keittiö: | Keittiö uusittu 2015. Varustus: jääkaappi/pakastin, astianpesukone. Työtasot: laminaatti. Liesi: keraaminen. Lattia: laatta |
| Pesutilat: | Varustus: pesukoneliitäntä, wc-istuin, suihku, peilikaappi, kylpyhuonekaapisto, asennettuja erikoisvarusteita Seinät: kaakeli Lattia: laatta |
| Erillinen WC | Eteisessä Varustus: Seinät: kaakeli Lattia: laatta |
| Sauna: | Taloyhtiössä sauna |
| Makuuhuoneet: | Seinät: maalattu Lattia: laminaatti Lukumäärä: 3 |
| Olohuone: | Kulku parvekkeelle Seinät: maalattu Lattia: laminaatti |
| Muut tilat: | Eteinen |
| Säilytystilat: | kellarikomero |
| Muutostyöt huoneistossa: | Keittiö remontoitu ja seiniä tapetoitu 2015. |
| Kunto: | tyydyttävä |
Kiinteistö- ja yhtiötiedot
| Yhtiön nimi: | Asunto Oy Pärnunkatu 6 |
| Tontti: | vuokrattu, 2550m² |
| Käyttöönottovuosi: | 1972 |
| Rakennusmateriaali: | betoni |
| Kattotiedot: | Tyyppi: Tasakatto Kate: Huopakate |
| Huoneistot yhtiössä: | Asuinhuoneistot 18 kpl (1165 m²) |
| Lämmitysjärjestelmä: | kaukolämpö |
| Tehdyt korjaukset: | Porraskäytävien maalaus ja kaapeli-tv 1988, Katon huopa uusittu 1992, Lämmönsiirrin ja patteritermostaatti 2005, Ilmastoinin nuohous ja säätö 2009, Ikkuna ja parvekeovien uusiminen 2010, Julkisivumaalaus 2010. Lukoston uusiminen 2014. Kylmiön jäähdytyslaitteiston uusiminen 2015. Viemäreiden kuvaus ja puhdistus 2016. Lattiakaivojen kunnostus 2018. Ilmanvaihdon kunnostus ja säätö 2021. Vesijohto-, sähkö- ja dataverkon uusimisen suunnittelu 2023. Palovaroittimien asennus 2024. Saunaosaston pintaremontti 2024. Taloyhtiön asunnon kylpyhuoneremontti 2024. Vesijohto-, sähkö- ja dataverkon uusiminen (käyttövesisaneeraus) 2024. |
| Suunnitellut korjaukset: | Vesikaton kartoitus 2026 |
| Lisätietoja autonsäilytyspaikoista: | Kaikki autopaikat ovat tällä hetkellä vuokrattuja. Tolppajono ei ole pitkä. Tallijono on pitkä (tilanne 17.3.2026).. Kaikki autopaikat ovat tällä hetkellä vuokrattuja. Tolppajono ei ole pitkä. Tallijono on pitkä. Poismuuttavilla vuokralaisilla on ollut tolppapaikka. |
| Isännöitsijä: | Isännöinti Mäkinen Oy, Kimmo Rosendahl, 029 123 3413, kimmo.rosendahl@ismakinen.fi |
| Kiinteistönhoito: | Kiinteistön hoidosta vastaa: huoltoyhtiö |
| Yhtiön tilat ja varustelu: | sauna, talopesula, mankeli, jäähdytetty kellari, kellarikomero, urheiluvälinevarasto, askarteluhuone, kaapeli-tv |
Muita tietoja
| Kaavoitus: | Asemakaava |
| Palvelut: | K-Market Suvilahti n. 300 m. Koulu: Suvilahden alakoulu n. 500 m Englanninkielinen leikkikoulu n. 500 m |
| Vapautuu: | 01.04.2026 mennessä |
| Lisätietoja: | parveke, kaapeli-tv |
Asumiskustannukset
| Hoitovastike: | 377,65 €/kk (4,55 €/m²) |
| Rahoitusvastike: | 294,65 €/kk |
| Yhtiövastike yhteensä: | 672,30 €/kk |
| Vesi: | 23,00 €/kk henkilöluvun mukaan |
| Muut maksut / lisätietoa maksuista: | Taloyhtiönetti Elisa 25 M: mediamaksu 2,90 €/ kk Saunamaksu 4 €/ tunti Pesutupa 3 €/ tunti Vesiennakkomaksu 23 €/ hlö/ kk Autopaikka 10 €/ kk, autotalli 30 €/ kk |
Hinta
| Myyntihinta: | 49 662,46 € (598,34 €/m²) |
| Velkaosuus: | 39 337,54 € (473,95 €/m²) |
| Velkaosuuden maksu: | velkaosuuden voi maksaa |
| Velaton hinta: | 89 000,00 € (1 072,29 €/m²) |
Yhteyshenkilön tiedot
| Nimi: | Lähteenmäki Maarit |
| Puhelinnumero: | 0400-14 14 31 |
| Sähköposti: | maarit@kiinteistomeklarit.fi |
Valokuvat
Lisätiedot

Lähteenmäki Maarit
Kiinteistönvälittäjä, LKV
0400-14 14 31
maarit@kiinteistomeklarit.fi


