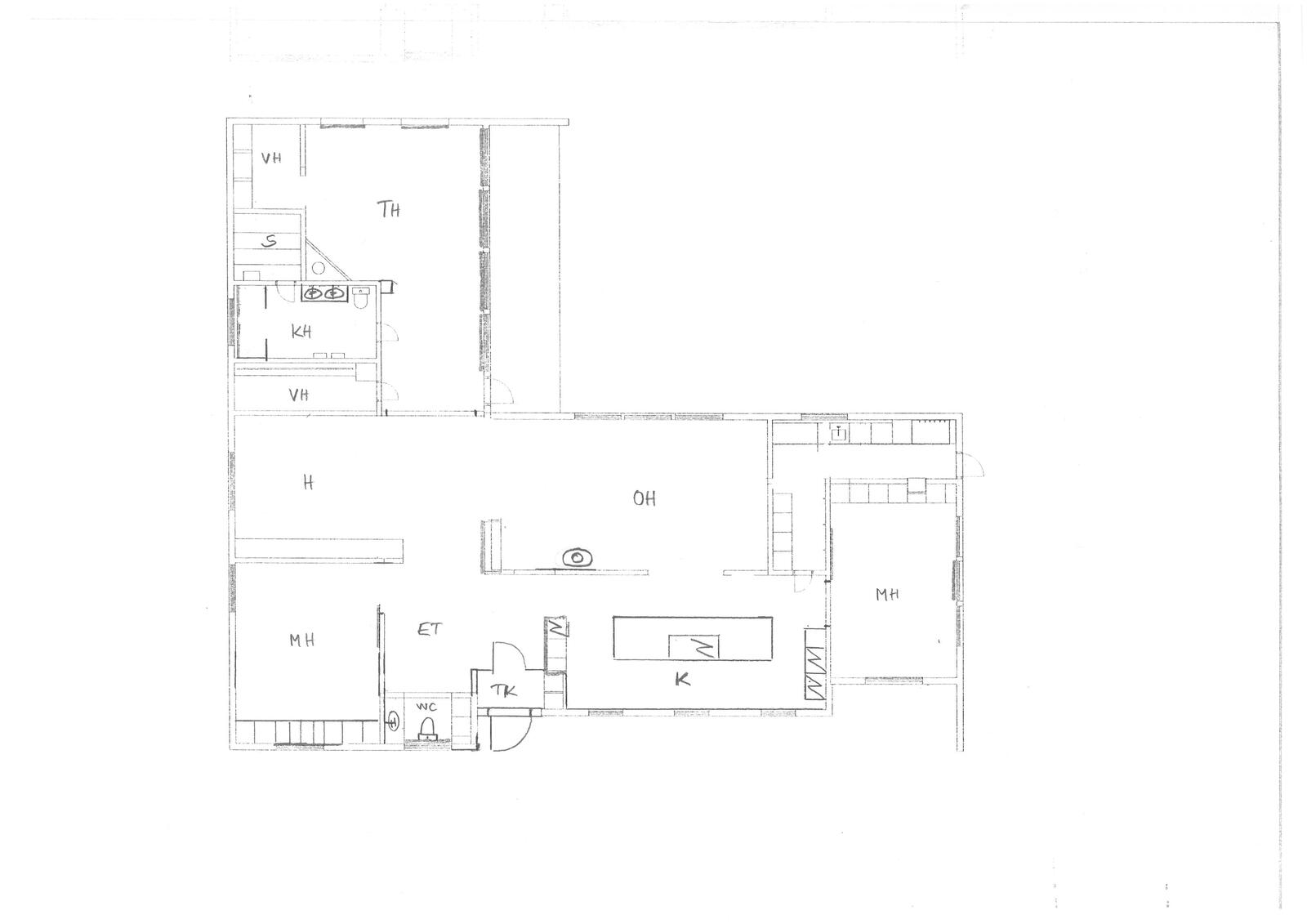
ISKMO, 4H+K+TH+S+KHH+AT, 298 m²
Iskmontie 54
Luonnon rauhaa ja tilaa ympärillä – silti koulut, harrastukset ja palvelut ovat sujuvan matkan päässä. Täällä perheellä on aidosti hyvä elää. Tämä koti tarjoaa viihtyisää ja tyylikästä asumista avarissa, valoisissa tiloissa. Sisustuksessa korostuvat vaaleat luonnonmateriaalit: koivuvaneriseinät, vaalea lautalattia sekä vaaleanharmaa kivilaatta luovat ajattoman ja rauhallisen kokonaisuuden. Lähes 300 m² yksitasoinen talo on vuosien varrella muokattu entistä avarammaksi ja valoisammaksi – seiniä on poistettu ja oviaukkoja levennetty. Huoneita on alkuperäiseen pohjaratkaisuun verrattuna vähemmän, mutta sitäkin tilavampia. Makuuhuoneita tai niiksi helposti muunneltavia tiloja on kolme ja lisäksi käytössä on reilunkokoinen takkahuone. Keittiö on todellinen ruoanlaittajan unelma. Suuren keittiön sydämenä toimii näyttävä saareke, jossa on monipuolinen liesitaso: kaasuliesi, parila ja keraaminen keittoalue. Tilaa on sekä kokkailuun että yhdessäoloon. Keittiön vieressä olevaan olohuoneeseen mahtuu suuri ruokailuryhmä ja edelleen mukavasti sohvaryhmä. Tunnelmaa ja lämpöä tuo myös olohuoneen tulisija. Hiljattain remontoitu, tilava takkahuone uusine varaavine takkoineen toimii mainiosti toisena olohuoneena. Sen vieressä sijaitsee myös upea, vastikään uusittu saunaosasto. Sisäpuolen mittavien remonttien lisäksi on myös talon katto uusittu aivan juuri (2025). Vaikka kyseessä on suuri talo, lämmityskustannukset pysyvät maltillisina maalämmön ansiosta. Sama järjestelmä lämmittää myös ison autotallin, jossa on kahden auton lämmin talli, erillinen kylmä talliosa sekä niiden välissä lämmin varasto. Myös tontti on poikkeuksellisen suuri, yli 5 000 m². Iskmo Sundetin läheisyys tuo sijaintiin lisäarvoa ympäri vuoden: talvisin hiihtoladut kulkevat jäällä ja rannassa ja Iskmon–Jungsundin vaellusreitti sijaitsee aivan lähistöllä. ************************************* Ett hem där naturen finns runt knuten – men skolor, fritidsaktiviteter och service nås snabbt och smidigt. Här är det helt enkelt gott att leva för hela familjen. Detta hem erbjuder ett trivsamt och stilrent boende i rymliga och ljusa utrymmen. Inredningen präglas av ljusa naturmaterial: väggar i björkfanér, ljusa trägolv och ljusgrå stenplattor skapar en harmonisk och tidlös helhet. Det nästan 300 m² stora enplanshuset har genom åren öppnats upp för att skapa mer rymd och ljus – väggar har tagits bort och dörröppningar breddats. Jämfört med den ursprungliga planlösningen finns färre rum, men desto generösare utrymmen. Det finns tre utrymmen som enkelt kan användas som sovrum samt ett rymligt allrum med eldstad. Köket är en sann dröm för den matlagningsintresserade. I centrum av det stora köket finns en imponerande köksö med en mångsidig spishäll som kombinerar gas, stekbord och keramisk häll – perfekt för både vardag och fest. Vardagsrummet bredvid köket rymmer utan problem en stor matgrupp och dessutom en bekväm soffhörna. Även här bidrar en eldstad till värme och stämning. Det nyligen renoverade, rymliga allrummet med sin värmelagrande eldstad fungerar utmärkt som ett andra vardagsrum. Intill ligger även den smakfullt förnyade bastuavdelningen. Även hustaket har blivit förnyatt alldeles just (2025). Trots husets storlek hålls uppvärmningskostnaderna på en rimlig nivå tack vare bergvärme. Samma system värmer även det stora garaget med varm del för två bilar, en kall garageplats samt ett uppvärmt förråd däremellan. Tomten är generöst tilltagen, över 5 000 m². Närheten till Iskmo Sundet ger ett extra mervärde året om – vintertid finns skidspår både på isen och längs strandlinjen, och vandringsleden Iskmo–Jungsund går alldeles i närheten.
Katso kaikki kuvat
omakotitalo, 4H+K+TH+S+KHH+AT, 298 m²
ISKMO, Iskmontie 54, 65100 Mustasaari
Velaton hinta: 279 000,00 €
Rakennus
| Rakennusvuosi: | 1979 |
| Käyttöönottovuosi: | 1979 |
| Rakennusmateriaali: | puu, tiiliJeo-talo |
| Katto: | Tyyppi: Aumakatto Kate: Profiilipeltikate Katon kunto: Uusittu 11/2025 |
| Asuintilojen pinta-ala: | 298 m² |
| Muut tilat: | 0 m² |
| Energiatodistus: | Ei lain edellyttämää energiatodistusta. |
| Lämmitysjärjestelmä: | Maalämpö asennettu 2000-luvun alussa. Takkahuoneessa ja pesuhuoneessa vesikiert. lattialämmitys, maalämpö |
| Huoneluku: | 4H+K+TH+S+KHH+AT |
| Keittiö: | Todella iso saareke, jossa liesitaso (kaasu, parila ja keraaminen osa, Gaggenau). Varustus: jääkaappi/pakastin, astianpesukone, liesituuletin / hormi. Työtasot: puu. Liesi: erillisuuni. Lattia: lauta. Seinät: lasikuitutapetti |
| Pesutilat: | Remontoitu n. 2020 (Aveo), kaksi suihkua ja kaksi lavuaaria Varustus: lattialämmitys, wc-istuin, suihku, peilikaappi, kylpyhuonekaapisto Seinät: kaakeli Lattia: laatta |
| Erillinen WC | Eteisen yhteydessä Varustus: Seinät: muu Lattia: laatta |
| Kodinhoitohuone: | Remontoitu 2000-luvun alussa Varustus: pesukone, pesukoneliitäntä, pesuallas, pyykkikaapit, pöytätaso. Lattia: laatta |
| Sauna: | Oma sauna. Saunakin remontoitu n. 2020, Tulikiven kiuas, hana saunassa. Kiukaan tyyppi: sähkökiuas |
| Makuuhuoneet: | Seinät: lasikuitutapetti Lattia: lauta Lukumäärä: 3 |
| Olohuone: | Seinät: muu Lattia: lauta |
| Muut tilat: | Eteinen, Tuulikaappi, Takkahuone |
| Takka: | takka. Kaksi makuuhuonetta |
| Säilytystilat: | Autotallissa paljon varastointitilaa, kaksi vaatehuonetta. |
| Muut rakennukset: | autotalli. Iso autotalli, jossa yksi kahden auton lämmin talli ja kylmä talli ja keskellä "pannuhuone"/ varasto. Maalämpöpumppu lämpimän tallin puolella. |
| Tehdyt korjaukset: | Taloon uusi vesikatto 10/ 2025, Saunaosasto ja takkahuone remontoitu n. 2020 (Aveo) Keittiö remontoitu n. 2005 + muuta pintaremonttia seinien poistoja ja aukkojen tekemisiä. Uusi takka olohuoneeseen (ei ollut entuudestaan) ja takkahuoneen takka uusittu. Sadevesijärjestelmäremontti n. 2020 |
| Kunto: | hyvä |
Kiinteistötiedot
| Kiinteistötunnus: | 499-407-2-241 |
| Kortteli/ Kiinteistön nimi: | Verklösa |
| Tyyppi: | omakotitalo |
| Tontti: | Tasamaatontti, 5680m², oma |
| Vesijohto | kunnan |
| Viemäri: | oma |
Muita tietoja
| Kaavoitus: | Kaavoittamaton |
| Perustus: | Laattaperustus |
| Palvelut: | Iskmo-Jungsundin vaellusreitti lähistöllä, Grönvikin uimaranta, kalakauppa Fjärdskärissä. Koulu: Karperössä ruotsinkielinen alakoulu, Sepänkylässä suomenkieliset ja ruotsinkieliset lukioon asti. |
| Vapautuu: | sopimuksen mukaan |
| Lisätietoja: | oma sauna, tie perille, kaapeli-tv, kuntotarkastus tehty, vesiliittymä, kaapeli-tv |
Asumiskustannukset
| Kiinteistövero: | 618 |
| Muut maksut / lisätietoa maksuista: | Sähkön kokonaiskulutus: 16.000 kWh (2024) |
Hinta
| Myyntihinta: | 279 000,00 € |
Yhteyshenkilön tiedot
| Nimi: | Lähteenmäki Maarit |
| Puhelinnumero: | 0400-14 14 31 |
| Sähköposti: | maarit@kiinteistomeklarit.fi |
Valokuvat
Lisätiedot

Lähteenmäki Maarit
Kiinteistönvälittäjä, LKV
0400-14 14 31
maarit@kiinteistomeklarit.fi


