KESKUSTA, 2H+KK+KH, 60 m²
Vaasanpuistikko 1 D 9
Hyvä remonttikohde merellisissä maisemissa – tilava päätykaksio keskustassa Tässä on loistava mahdollisuus remontoida unelmiesi koti tai sijoitusasunto kauniissa merellisessä ympäristössä! Tämä 60 m²:n päätyasunto sijaitsee Asunto Oy Juhonnurkan 4. kerroksessa Vaasanpuistikon puolella. Lasitetulta parvekkeelta avautuvat viistosti viehättävät näkymät merelle ja Vaskiluodon sillalle sekä tietysti puistikolle. Arkkitehti Rewellin suunnittelema yhtiö on saanut viime vuonna perusteellisen julkisivusaneerauksen: ikkunat, parvekkeet, lasitukset ja eristykset on uusittu – ja tämän asunnon osalta lainaosuus on jo maksettu pois. Tee tästä tyylikäs kaupunkikoti itsellesi, viihtyisä vuokrakohde tai flippaa. Yhtiö on omalla tontilla, ja hoitovastike on maltillinen 3,90 €/m² (237,90 €/kk). Saunaosasto sijaitsee talon ullakkokerroksessa Rantakadun ja Vaasanpuistikon kulmassa – ja sieltä avautuvat upeat, lähes postikorttimaiset näkymät meren ylle ja Hovioikeuden puistoon. ************************************ Ett utmärkt renoveringsobjekt med havsutsikt – rymlig gaveltvåa i centrum Här finns en fantastisk möjlighet att skapa ditt drömhem eller en attraktiv investering i ett vackert, havsnära läge! Denna rymliga tvåa på 60 m² ligger i bostadsbolaget Asunto Oy Juhonnurkkas fjärde våning, på Vasaesplanadens sida. Från den inglasade balkongen har du trevliga vyer mot havet och Vasklotbron. Fastigheten, ritad av arkitekt Rewell, har nyligen genomgått en omfattande fasadrenovering där även fönster, balkonger, inglasningar och isolering förnyats – och låneandelen för denna lägenhet är redan betald. Renovera och skapa en stilfull stadsbostad för eget bruk, uthyrning eller vidareförsäljning. Bostadsbolaget står på egen tomt, vilket bidrar till en låg månadsavgift på endast 3,90 €/m² (237,90 €/månad). Husets bastuavdelning ligger högst upp i hörnet av Strandgatan och Vasaesplanaden – med en fantastisk utsikt över havet och Hovrättsparken.
Katso kaikki kuvat
kerrostalo, 2H+KK+KH, 60 m²
KESKUSTA, Vaasanpuistikko 1 D 9, 65100 Vaasa
Velaton hinta: 149 000,00 €
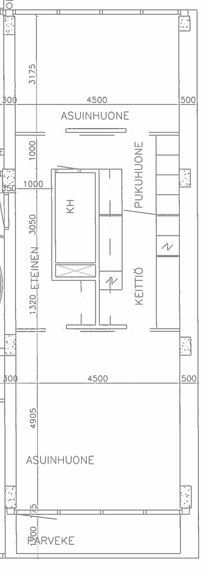
Huoneisto
| Osakkeet: | 4328-4388 |
| Hallintamuoto: | asunto-osakeyhtiö |
| Huoneluku: | 2H+KK+KH |
| Kerros/Kerroksia: | 4/7 |
| Asuintilojen pinta-ala: | 60 m² |
| Näkymät: | Viisto merinäkymä |
| Parveke: | lasitettu. Suunta: etelä |
| Keittiö: | Varustus: jääkaappi/pakastin, astianpesukone. Työtasot: laminaatti. Liesi: sähköliesi |
| Pesutilat: | Varustus: lattialämmitys, wc-istuin, suihku, peilikaappi Seinät: osalaatoitus Lattia: muovi |
| Sauna: | Taloyhtiössä sauna |
| Makuuhuoneet: | Seinät: maalattu Lattia: muovi |
| Olohuone: | Seinät: tapetti Lattia: muovi |
| Säilytystilat: | kellarikomero, vinttikomero |
| Muutostyöt huoneistossa: | Kylpyhuone remontoitu putkiremontin yhteydessä 2017 |
| Kunto: | tyydyttävä |
Kiinteistö- ja yhtiötiedot
| Yhtiön nimi: | Asunto Oy Juhonnurkka |
| Tontti: | oma, 1610m² |
| Käyttöönottovuosi: | 1956 |
| Rakennusmateriaali: | betoni |
| Kattotiedot: | Tyyppi: Harjakatto Kate: Pelti |
| Huoneistot yhtiössä: | Asuinhuoneistot 83 kpl (4873 m²),Liikehuoneistot 2 kpl (187.7 m²) |
| Lämmitysjärjestelmä: | kaukolämpö, muu: vesikiertoinen lattialämmitys |
| Energiatodistus: | kyllä; Energialuokka: F2013. |
| Tehdyt korjaukset: | 2024 Julkisivukorjaus, lisäeristys, ikkunoiden ja parvekeovien uusiminen. 2023 Lämmönvaihtimen ja automatiikan uusiminen. 2021-2022 Julkisivukorjauksen ( ikkunat, parvekkeet, julkissivujen eristyksen ja uudet julkisivupellitykset) ja lämmitysverkoston uusimisen suunnittelu 2019 Julkisivukorjauksen sekä mahdollisen ullakkorakentamisen suunnittelu aloitettiin, pihan asfaltti sekä sadevesiviemäröinti uusittiin, kuivaushuoneeseen uusi kuivauskone, ilmanvaihtokanavien puhdistus 2017 käyttövesiputkien uusiminen 2014 yleisten tilojen maalauksia 2013 Siivousparvekkeiden ovien korjaus 2012 Peltikaton pinnoitus 2011 Saunatilojen ikkunoiden maalaus, kuivaushuoneen maalaus 2010 Lukoston uudelleen sarjoitus, viemäriputkiston saneeraus 2009 Siivousparvekkeiden korjaus 2008 Rantakadun puoleisen tiiliseinän käsittely silikaattipinnoitteella, taloyhtiön asunnon korjaus 2006 Sisäpihan puoleisten ikkunoiden kunnostus ja maalaus 2005 Jätekatoksen rakentaminen, pesukoneen uusiminen 2003 Hissien peruskorjaus 2002 Piha-alueen asfaltointi ja lämpöpistokkeiden asennus 2002 Saunan löylyhuoneen ja pukuhuoneen korjaus |
| Suunnitellut korjaukset: | Korjaussuunnitelma seuraavalle 5:lle vuodelle: Ullakkoikkunoiden uusiminen 30 000,00 € Porraskäytävien maalauskorjaukset 10 000,00 € Aita naapuritaloa vasten 10 000,00 € (kustannusarviot koskevat koko taloyhtiötä) |
| Autonsäilytys: | Sähköpistokepaikkoja: 20 kpl |
| Isännöitsijä: | Olli Tarvonen, Isännöintitoimisto Nyholm Oy, Raastuvankatu 12-14 B, 65100 Vaasa, p. 010 420 5100, 0400-669 062, olli.tarvonen@netikka.fi |
| Kiinteistönhoito: | Kiinteistön hoidosta vastaa: huoltoyhtiö |
| Yhtiön tilat ja varustelu: | sauna, talopesula, kuivaushuone, mankeli, vinttikomero, kellarikomero, urheiluvälinevarasto, kaapeli-tv |
Muita tietoja
| Kaavoitus: | Asemakaava |
| Vapautuu: | 31.10.2025 mennessä |
| Lisätietoja: | hissi, parveke, kaapeli-tv |
Asumiskustannukset
| Hoitovastike: | 237,90 €/kk (3,97 €/m²) |
| Rahoitusvastike: | 59,17 €/kk |
| Yhtiövastike yhteensä: | 297,07 €/kk |
| TV-maksut: | 5,90 |
| Muut maksut / lisätietoa maksuista: | Vedestä laskutetaan todellisen käytön mukaan n. joka 3. kk (huoneistokohtaiset mittarit) Ostaja ottaa vastatakseen yhtiölainaosuuden. Mikäli ostaja haluaa maksaa lainaosuuden pois, vastaa hän taloyhtiön pankin ja isännöitsijän mahdollisista kuluista lainan poismaksuun liittyen. |
Hinta
| Myyntihinta: | 145 101,28 € (2 418,35 €/m²) |
| Velkaosuus: | 3 898,72 € (64,98 €/m²) |
| Velkaosuuden maksu: | velkaosuuden voi maksaa |
| Velaton hinta: | 149 000,00 € (2 483,33 €/m²) |
Yhteyshenkilön tiedot
| Nimi: | Lähteenmäki Maarit |
| Puhelinnumero: | 0400-14 14 31 |
| Sähköposti: | maarit@kiinteistomeklarit.fi |
Valokuvat
Lisätiedot

Lähteenmäki Maarit
Kiinteistönvälittäjä, LKV
0400-14 14 31
maarit@kiinteistomeklarit.fi


